How Spindle Power is Controlled

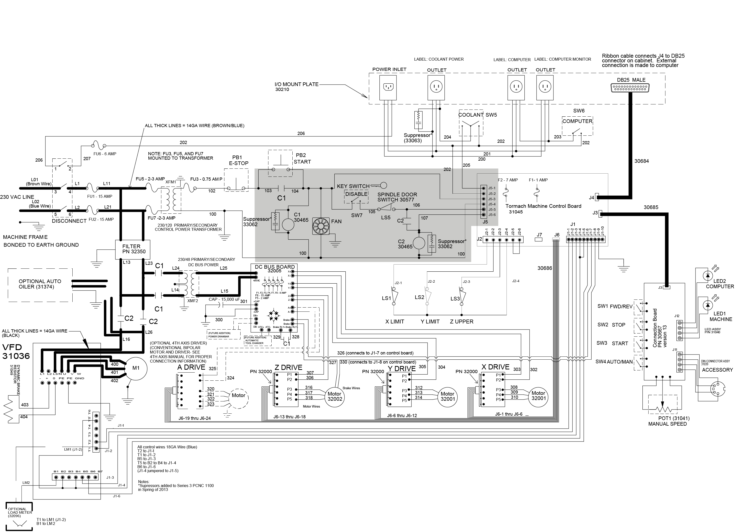
The Machine Control Board powers on contactor C2, through which the VFD is powered by 230Vac. A contactor is like a large relay: While its coil is powered by small control signal (100 mA at 115 Vac), it switches a much larger current (15 ampere at 230 Vac).

During operation, contactor C2 engages when you first command the spindle to run, and remains engaged until you (or the machine) do any one of the following actions:

  • Open the spindle door
  • Turn the Spindle Lockout key to thelocked ("0" position)
  • The Power Drawbar is in the process of releasing a tool from the spindle collet

To prevent injury, the spindle door switch stops power to the spindle when the spindle door is open. Wires 105 and 106 are connected from the contactor C2 coil to the spindle door switch. The spindle doesn't start if:

  • The spindle door is open,
  • The switch is faulty or not properly adjusted, or
  • Wires 105 and/or 106 are loose.

When you turn the Spindle Lockout key to the locked ("0" position), the system stops power to the VFD. Wires 104 and 105 are connected from the contactor C2 coil to the Spindle Lockout switch. The system doesn't supply power to the VFD if:

  • The switch is faulty or not properly ajusted, or
  • Wires 104 and/or 105 are loose.

If you have the optional Power Drawbar , power is removed from the VFD when the:

  • Power Drawbar is in the process of releasing a tool from the spindle collet
  • Relay is faulty
  • Wires 105 and/or 105A are loose